Located in the community of the same name, Chateau Roquefort rises proudly out of the foothills on the left bank of the valley of the Gers, 18 km north of Auch (the capital of the department). Constructed in the thirteenth century at the limits of the County of Armagnac, the castle certainly guarded the important communication route that passed at its feet, as an outpost facing the English castles of Sainte Christie and Casteljaloux.
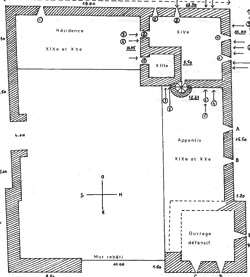
In the thirteenth century, the castle consisted only of a watchtower. It was square, measured about 6 meters a side, with walls of a thickness of 140 centimeters. “In its interior, this tower possesses the greatest curiosity of the entire monument. From the ground up to a height of 2 meters, it was built in solid masonry, as if to prevent any attempt of sapping from underneath. Above this masonry stood a square compartment of 350 cm a side, about 5 meters high, without any openings in the lateral walls. It would have been a rather dark cell if it served as a prison! The unhappy souls that were imprisoned there were lowered in through a square opening in the roof; and it is through [this opening] that it received the light of day, air and supplies!”
The Abbot Daugé.
For René Caïrou, there must also have been a rampart, of which there remain “some vestiges against which posterior buildings were abutted.”
Again according to René Caïrou (whose study differs from that of the Abbot Daugé), the dungeon would have been built in the fourteenth century (and not during the fifteenth). |
He bases his thesis on a bill of sale he found dating from 1365, in which “the land of Roquefort, its tower and its mills, is sold to the Noble Maurin Bernadius de Biran (…) bourgeois from Auch who became rich from the public commissions he occupied.” According to him, these Biran “were not satisfied in the confined tower of the thirteenth century.”

The tower was then absorbed by the construction of the dungeon. The latter, rather majestic, was constructed on a square base of around 12 meters per side, in a beautiful, well conserved bond, and rises to a height of 18 meters. According to René Caïrou, it must have included six levels, counting the basement and a hermetically closed ground floor, with the highest floor sporting a continuous machicolated defense. The first floor was reserved for defensive purposes, while the second floor was that of the nobles –the home of the seigneur—as in most of the Gascon chateaux.
It was decorated and well-lit by lattice windows. “We can still find, on this floor, vestiges of the paint that decorated these apartments.
|
We also remark, encased in the northeast corner, the remains of a triangular basin. The jambs, cornice and the chimney of the great fireplace that once heated this apartment have been removed. All that rests are the two corner pieces implanted in the north wall.” The Abbot Daugé.
According to René Caïrou, this dungeon “possesses the mass of the constructions of the fourteenth [century]. Also from the fourteenth, the manicured masonry with rubble stones, their facades well-aligned, and assemblages with thin joints. Finally and above all, a powerful defensive system that is carried over to the top with the appearance of a continuous machicolated system. Concerning the lattices and half-lattices, they appear to be of origin and betray a style that is wide-spread in the fifteenth century; the openings would date, therefore, from the end of the fourteenth century.” The castle must have been a rather dissuasive defensive post, judging from its imposing construction and its remarkable strategic position.
The castle was abandoned during the sixteenth century for a period of nearly two hundred years, then saved from ruin in the eighteenth century. Transformations and add-ons followed during the nineteenth and twentieth centuries. It has since been entirely restored by the current owners, who have transformed it into an elegant private residence. |
 |
The Seigneurs of Roquefort:
The castle’s first known owner, in 1365, was Maurin de Biran, who was in no way related to the family of the Barons of Biran, but rather a bourgeois from Auch who must have been held in high esteem by the Counts of Armagnac.
“His descendants were, for more than two hundred years, seigneurs of Roquefort and insured its prosperity with new constructions, including the current dungeon. The last of the Biran, Bernard de Biran, died during the second quarter of the sixteenth century and the chateau changed families in the middle of the sixteenth century.”
René Caïrou.
“Although Bernard de Biran was the last of this name to enjoy the prerogatives of the seigneurs of Roquefort, his race continued to generate numerous illustrious offspring, among them Carbon de Biran de Casteljaloux (…) lieutenant in the guards who served at Aunis in the seventeenth century. Was it not to him that Edmond Rostand dedicated a glorious refrain in his ballade of Cyrano (in the Cadets of Gascogne)?”
The Abbot Daugé.
Roquefort then passed into the hands of the Dukes of Roquelaure, and then was transmitted successively by inheritance to the Duke of Rohan, the Viscount of Chabot, Baron de Montesquiou, Viscount de Lautrec and to the Rohan-Chabot family in the eighteenth century.
The Marquise of Larroque-Gensac bought Roquefort in 1751, and it remained in her family until 1857.
Since that year, numerous other owners succeeded each other until the castle was purchased by its current owners in 1971.
|
|
|